
Moradas Parnaíba: O Bairro Planejado Completo com Lotes a Partir de R$ 69.900!
Prepare-se para viver o novo! Estamos prestes a lançar o Moradas Parnaíba, o único bairro planejado de Parnaíba que combina qualidade de vida, lazer e excelente localização (ao lado do aeroporto e com fácil acesso às praias).
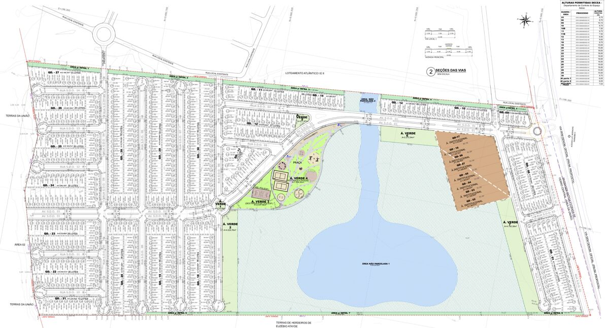
Este é um projeto completo que oferece:
- Lotes Residenciais e Comerciais (a partir de 200m²).
- Uma área de lazer inédita com Lago Contemplativo e praça de 8.000m².
- Condições especiais para Profissionais de Segurança e Servidores Públicos.
Prioridade de Lançamento e Preço Exclusivo
O valor dos lotes será a partir de R$ 69.900,00 e parcelamento em até 144 vezes direto com a construtora.
Não perca o "Dia D"! Cadastre-se agora mesmo e garanta prioridade na escolha do lote e as condições mais especiais e exclusivas de lançamento, pensadas só para quem estiver na lista.
Esta é a sua chance de viver, investir e garantir seu futuro em um lugar único. Cadastre-se e saia na frente!
Mapa do empreendimento

Características
Estabelecimentos próximos

Localização
Loteamento Moradas Parnaíba - Floriópolis, Parnaíba - PI







